Os desenhos de arquitetura são a base de todo projeto de construção e reforma bem-sucedido. E, felizmente, é mais fácil do que nunca criar diferentes tipos de desenhos arquitetônicos.
Já se foram os dias em que esboçava tediosamente esboços feitos à mão ou trabalhava como escravo em um programa CAD por dias a fio.
Com software moderno, você – mesmo com experiência limitada em design – pode criar desenhos arquitetônicos profissionais em apenas algumas horas.
Aqui neste artigo, daremos tudo o que você precisa para começar:
- Tipos de desenhos arquitetônicos
- Uma visão geral do processo de desenho
- E programas sugeridos de design de arquitetura
Vamos começar!
O que é um desenho arquitetônico?
Um desenho arquitetônico é um esboço, planta, diagrama ou esquema que comunica informações detalhadas sobre um edifício. Arquitetos e designers criam esses tipos de desenhos técnicos durante as fases de planejamento de um projeto de construção.
Os desenhos de arquitetura são importantes por vários motivos:
- Eles ajudam os proprietários e planejadores de projetos a entender como será a aparência e o funcionamento de um edifício quando este estiver concluído.
- Eles fornecem as informações e instruções necessárias para que a equipe de construção possa construir a estrutura.
- E, por fim, tais desenhos fornecem um registro detalhado do funcionamento interno de um edifício, o que acaba sendo necessário para manutenções futuras.
Ao longo do projeto, você precisará criar diferentes tipos de desenhos arquitetônicos.
Vamos aprender mais sobre eles na próxima seção.
11 Tipos de desenhos na arquitetura:
O caminho para um projeto concluído começa com um conjunto detalhado de desenhos de planta de arquitetura. Aqui estão 11 tipos comuns de desenhos que você pode precisar.
1. Desenhos da planta de localização

A planta de localização fornece uma vista aérea do edifício e do seu entorno. Às vezes, até mostra edifícios vizinhos ou infraestruturas, como estradas.
As plantas de localização são importantes para mostrar exatamente como a estrutura está posicionada em relação aos limites da propriedade. Além disso, os desenhos de planta de localização podem fornecer informações detalhadas e dimensões para recursos de paisagismo, calçadas, pátios e outros elementos de design externo.
Com um software de design residencial moderno como o Cedreo, você pode até criar plantas 3D que mostram o projeto paisagístico junto com uma planta 3D como desenho do interior da casa.
Desenhos de arquitetura 3D como esse são uma ótima adição às suas propostas de projeto!

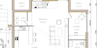
2. Desenhos de plantas baixas

Os desenhos da planta baixa mostram o layout interno de uma estrutura. Os layouts de planta também vêm em uma ampla variedade de tipos, dependendo de como serão usados.
Por exemplo, alguns desenhos de plantas baixas são feitos para apresentar elementos de design específicos, como sistemas elétricos ou de encanamento.
As plantas baixas mais comuns para projetos de construção residencial são desenhos que mostram medidas detalhadas entre paredes, portas e janelas. A maioria também mostrará os cálculos da área de superfície de cada cômodo. Esses tipos de desenhos arquitetônicos são essenciais para fazer orçamentos e construir uma casa segundo as especificações do arquiteto.
No passado, as plantas baixas costumavam ser limitadas a desenhos simples em preto e branco e plantas 2D. Mas desenhos como esse são difíceis de serem compreendidos por muitos clientes.
Agora, com programas como o Cedreo, você pode criar plantas baixas em 3D completas com móveis, pisos, pinturas e decorações. Eles são bons para ajudar os clientes a entenderem e ficarem entusiasmados com o projeto, sendo a representação gráfica perfeita para as necessidades atuais!

3. Desenhos de corte
Os planos de corte são desenhos bidimensionais que mostram uma combinação de elementos visíveis e ocultos em um edifício. Imagine que você cortou parte do edifício ao meio ao longo de um plano vertical e está olhando para o interior. Isso é um plano de corte ou desenho seccional.
Os desenhos de arquitetura envolvendo um plano de corte são úteis para mostrar como certas partes de um edifício são montadas. Eles podem expor detalhes, tais quais:
- Como as paredes devem ser construídas
- Como as janelas se encaixam em uma seção de parede
- Transições estruturais de um andar para o outro

4. Desenhos de elevação
Um elevação arquitetônica é criado a partir de um plano vertical, olhando diretamente para o edifício. Os desenhos de fachada mais comuns são aqueles que mostram o exterior do edifício pela frente, por trás e pelas laterais.
Os arquitetos também podem criar elevações semelhantes a desenhos transversais que mostram uma vista interna a partir de um plano vertical. Isso ajuda a mostrar uma visão 2D de armários, portas e janelas.

5. Desenhos de finalização
Na representação de projetos, tais desenhos mostram vistas detalhadas dos acabamentos. Com eles, os arquitetos podem comunicar informações detalhadas sobre os tipos de revestimentos de piso, molduras, texturas e cores.
6. Desenhos de paisagens

Desenhos de paisagens são muito comuns de ver em projetos de construção residencial. Eles são semelhantes ao plano do local mencionado anteriormente, mas mostram mais detalhes relacionados às paisagens e à vegetação.
É importante ter algum desenho de paisagem 2D para mostrar o layout geral e as medidas. Contudo, os desenhos 3D também são muito úteis para entender a aparência da vegetação na vida real.
E com um programa como o Cedreo, você pode até criar renderizações 3D que mostram a aparência de um projeto paisagístico ao pôr do sol com a iluminação externa ligada, indo além de um simples desenho arquitetônico técnico em si!

7. Desenhos detalhados
Os desenhos detalhados em arquitetura são, geralmente, uma combinação de desenhos de pequenos cortes transversais e vistas aproximadas de uma pequena parte do edifício. Eles são muito importantes para mostrar como vários elementos se unem em partes críticas da construção.
Em alguns casos, os desenhos detalhados mostram, na engenharia, como as vigas de concreto armado devem ser montadas. Os detalhes da arquitetura mostram elementos de design personalizados ou junções complexas, como beirais de telhados e aberturas de janelas, como em uma geometria descritiva.
8. Desenhos As Built
Os desenhos As Built são desenhos revisados que mostram quaisquer diferenças entre os planos originais e como o edifício foi construído.
9. Desenhos de escavação
Os desenhos de escavação fornecem informações detalhadas sobre valas, poços, túneis e outros tipos de remoção de solo. Nestes desenhos, os arquitetos também podem mostrar detalhes importantes sobre o processo de escavação.
10. Desenhos de localização
Os desenhos de localização são uma categoria geral de desenhos que pode incluir uma combinação de plantas baixas, elevações e planos de corte. Às vezes chamados de “desenhos de arranjo geral”, esses planos arquitetônicos mostram a localização geral de diferentes elementos de construção.
11. Desenhos de design
Os desenhos de projeto mostram a estética e o fluxo geral de um espaço. No passado, arquitetos e designers criavam esboços que mostravam vistas 3D do projeto finalizado. Hoje em dia, os arquitetos usam softwares de design e renderização 3D como o Cedreo para fazer isso por eles.
Por exemplo, com o Cedreo, você pode criar desenhos de design 3D que mostram o interior de uma casa completo com acabamentos, móveis e efeitos de iluminação precisos. Desenhos de design como esses são realmente importantes para impressionar os clientes e aumentar as conversões.
Agora que você entende alguns dos tipos mais comuns de desenhos arquitetônicos, como eles se enquadram no processo geral de planejamento do projeto?
Descubra na próxima seção.
Etapas primárias no processo de desenho arquitetônico
Se você deseja projetar um arranha-céu ou uma casa residencial, precisará usar o mesmo processo básico de desenho. Aqui estão as principais etapas que seguem os padrões de desenho arquitetônico:
Plantas de localização
O primeiro passo é começar com o plano do local. Uma planta precisa de localização, com os limites, a topografia e os recursos existentes da propriedade, ajuda a determinar o tamanho e a forma do edifício que você pode colocar em tal propriedade.
Plantas baixas
A etapa de layout da planta baixa é uma das mais importantes. Todo o resto – iluminação, encanamento, HVAC, etc. – é baseado em grande parte na planta baixa.
Ao criar a planta baixa e finalizar as dimensões gerais do edifício, você precisará gerar uma combinação de desenhos 2D e 3D.
2D
Os planos 2D são a base dos seus desenhos arquitetônicos. É importante criar planos 2D com marcações de medição, símbolos para portas e janelas e até diagramas de móveis.
No entanto, se você estiver apresentando uma proposta de projeto a um cliente para aprovação, precisará fazer mais do que apenas planos 2D.
3D
Desenhos arquitetônicos em 3D destacam as suas propostas de projeto. Além disso, são uma das melhores maneiras de comunicar eficazmente suas ideias aos clientes – sendo muito empregadas por projetistas.
Você pode terceirizar o seu trabalho 3D, mas é muito menos complicado usar um programa como o Cedreo, que permite criar planos 2D e um modelo 3D de qualidade simultaneamente.
Assim que os seus clientes aprovarem o projeto final, você poderá passar para os desenhos mais detalhados necessários para a execução dos seus projetos de arquitetura.
Cortes
Agora é hora de criar alguns desenhos de corte. Para projetos de construção residencial que utilizam métodos de construção padrão, você provavelmente não precisará de muitos desenhos de corte. Isso porque os comerciantes já sabem como os diferentes elementos da construção se encaixam.
Elevações
A etapa final é criar as elevações externas do edifício. Estes desenhos mostrarão detalhes importantes sobre a fachada do edifício – materiais da superfície exterior, acabamentos de janelas e portas, medidas, etc.
Mas quais são os métodos utilizados para criar esses diferentes tipos de desenhos?
Confira os 3 estilos de desenho mais comuns na próxima seção.
Estilos de desenho de arquitetura
Quer saber como desenhar plantas de arquitetura? Aqui estão três dos estilos de desenho arquitetônico mais comuns.
Esboços arquitetônicos
Embora os computadores façam grande parte do trabalho pesado hoje em dia, os arquitetos ainda dependem de esboços desenhados à mão dependendo do objetivo e dos resultados almejados.
Esboços arquitetônicos feitos à mão (mesmo que sejam desenhados à mão em um programa de arte computacional) podem ser úteis durante os estágios iniciais de planejamento de um projeto. Eles são uma maneira fácil e rápida de colocar algumas ideias no papel para apresentar a um cliente ou à sua equipe de design.
No entanto, com programas de design doméstico fáceis de usar, os esboços feitos à mão estão rapidamente se tornando menos importantes. Isso ocorre porque programas como o Cedreo permitem projetar uma casa inteira no tempo que levaria para fazer um único esboço desenhado à mão. E ainda adicionam qualidade e profissionalismo para a sua técnica.
Desenhos gerados por computador
Os desenhos gerados por computador são planos e renderizações 3D criados com a ajuda de software especializado.
Em vez de desenhar cada vista e demais representações — incluindo texturas, sombreamento e iluminação — à mão, você insere os parâmetros do projeto arquitetônico e o computador faz o resto.
Isto leva a imagens fotorrealistas que dão aos clientes uma prévia do projeto finalizado. Não há melhor maneira de impressionar os clientes e comunicar claramente as suas ideias de design como desenhista.
Alguns programas precisam de muitos ajustes manuais e experiência em modelagem 3D. Mas com outros como o Cedreo, você pode produzir imagens profissionais praticamente sem nenhuma experiência anterior em design. Incluindo todas as perspectivas e aspectos essenciais para o seu projeto!
Projeto auxiliado por computador (CAD)
Os desenhos CAD são usados principalmente para estruturas grandes e complexas com muitos recursos personalizados. Os desenhos CAD 2D e 3D são perfeitos para mostrar cortes transversais e detalhes complexos de praticamente qualquer elemento de design.
A desvantagem é que os programas CAD têm uma curva de aprendizado acentuada e os desenhos – embora detalhados – podem levar muito tempo para serem criados, requerendo diversas técnicas.
Escalas comuns de desenho arquitetônico
Ao criar e ler desenhos arquitetônicos, é importante compreender as escalas do desenho.
Basicamente, uma escala ajuda a entender a relação entre o tamanho de algo no desenho e o tamanho desse mesmo objeto na vida real, quando em obra. É importante escolher a escala com base no tamanho do que você está desenhando e no tamanho do papel que vai usar para imprimir.
Aqui estão algumas das escalas mais comuns de acordo com os padrões de desenho arquitetônico.
1:500 (1”=40’0”) – Planta grande de localização
1:250 (1”=20’0”) – Planta de localização
1:200 (1/16”=1’0”) – Planta pequena de localização
1:100 (1/8”=1’0”) – Plantas baixas, elevações e cortes
1:50 (1/4”=1’0”) – Pequenas plantas baixas, elevações e cortes
1:20 (3/4”=1’0”) – Plantas de ambientes e elevações internas
1:10 (1 1/2”=1’0”) – Marcenaria e alguns detalhes de construção
1:5 (3”= 1’0”) – Detalhes detalhados da construção
Como criar um desenho arquitetônico on-line
Pronto para criar alguns desenhos arquitetônicos para um projeto? Guarde o lápis e o papel. Estamos no século XXI, então você pode usar um software de design doméstico para este feito.
E não se preocupe, você não precisa ser um especialista em CAD. Você só precisa encontrar o programa de design de casa certo com uma interface fácil de usar e os recursos que você precisa. Programas modernos como esses simplificaram o processo de design e facilitaram conquistar novos clientes com apresentações de projetos impressionantes.
Vamos ver como fazer desenhos arquitetônicos para uma casa residencial com o Cedreo, um programa de design residencial poderoso e fácil de usar.
Definir limites de propriedade
Crie uma camada de terreno e use a ferramenta de desenho para mapear os limites da propriedade. Se você já importou ou desenhou um projeto de construção, poderá girar a camada de terreno para garantir que a construção esteja posicionada corretamente.
Desenhe paredes externas e internas
Usar o modo de desenho contínuo no Cedreo para desenhar as paredes. Se você deseja importar uma planta existente, basta importar a planta, definir a escala e, em seguida, traçar sobre ela. À medida que você trabalha, você verá medidas atualizadas para garantir a precisão do seu desenho técnico.
Adicione porão ou níveis
O Cedreo facilita a duplicação do tamanho do piso térreo. Na etapa de layout, vá para a ferramenta de níveis. Em seguida, selecione “adicionar porão” ou “adicionar nível”. Uma vez que cria uma duplicata do piso térreo, é fácil ver onde adicionar coisas como escadas.
Adicionar escadas
Para casas de vários níveis, basta criar uma abertura e arrastar e soltar o tipo de escada desejado na guia “Móveis”.
Inclui aberturas de parede e janelas
Arraste e solte portas, janelas e outros tipos de aberturas de parede. Em seguida, use as ferramentas de personalização do Cedreo para definir o tamanho, estilo e moldura de cada abertura. O Cedreo também ajuda você a economizar tempo, permitindo aplicar as mesmas personalizações a todas as aberturas do mesmo tipo.
Rotular salas
Adicione rótulos para a cozinha, sala de estar, quartos, etc.
Adicionar dimensões
Apesar de algumas dimensões e cálculos de área serem adicionados automaticamente, você também pode personalizar quais deles aparecem nos desenhos arquitetônicos 2D finais. Basta ir até a aba do plano e selecionar cotação. Lá, você pode remover ou adicionar medidas adicionais quando necessário.
Inclua móveis e decorações
Um dos destaques dos programas de design doméstico moderno é a capacidade não apenas de criar um layout 2D, mas também de decorá-lo em 3D. O Cedreo torna isso muito fácil.
Tudo o que você precisa fazer é arrastar e soltar móveis, decorações e materiais de superfície da biblioteca de design. Com milhares de opções para escolher, você sabe que poderá mobiliar o espaço conforme o gosto do seu cliente.
Adicionar telhado
Vá para a guia do telhado, onde você encontrará tudo o que precisa e crie o seu telhado. Com todos os ângulos, os telhados podem ser complicados. Felizmente, o Cedreo facilita isso e ainda oferece a capacidade de criar um telhado personalizado para cada casa.
Agora, você viu como fazer um desenho arquitetônico com um programa como o Cedreo. Mas como ele se compara a outros programas de desenho arquitetônico?
Veja todos os detalhes a seguir!
3 Melhores programas de desenho arquitetônico
Vamos dar uma olhada rápida em 3 dos programas mais populares usados para criar desenhos arquitetônicos. Compare os recursos e descubra qual é o mais adequado para você.
Cedreo
O Cedreo foi projetado para agilizar todo o processo de design de uma casa, desde o planejamento inicial até a comunicação de ideias aos clientes. É um dos programas de desenho arquitetônico mais fáceis de usar. Na verdade, a maioria dos usuários pode criar um conjunto completo de desenhos, com planos 2D e visuais 3D, em apenas algumas horas.
Recursos de desenho arquitetônico:
- Importe plantas baixas existentes
- Desenhe uma sala em quatro cliques
- Obtenha medidas atualizadas automaticamente enquanto você desenha
- Ferramentas poderosas para designs personalizados
- Extensa biblioteca de design com mais de 7.000 itens
- Economize tempo reutilizando planos de projetos anteriores
- Software baseado em nuvem que não trava o seu computador
- Renderizações 3D fotorrealistas com 1 clique
- Equipe de suporte de classe mundial para ajudá-lo a ter sucesso
- Tutoriais em vídeo
SketchUp
O SketchUp é um programa popular de modelagem 3D que alguns usam para criar desenhos arquitetônicos. Por ser um programa de modelagem 3D, ajuda se você já tiver experiência com isso. Felizmente, você pode expandir os seus recursos com a compra de complementos para criar desenhos técnicos (embora isso possa sair caro, muito rápido).
Recursos de desenho arquitetônico:
- Capacidade de criar qualquer objeto imaginável
- Grande biblioteca de móveis gerados pelo usuário que você pode adicionar aos seus designs
- Crie renderizações HD com a ajuda de plugins adicionais
- Crie desenhos técnicos de detalhes arquitetônicos
AutoCAD
O AutoCAD é o padrão ouro para software CAD há muito tempo. Embora alguns arquitetos usem o AutoCAD para desenhos arquitetônicos, isso pode ser entediante. E por ser um programa tão extenso, o AutoCAD tem uma curva de aprendizado acentuada quando se trata de criar projetos residenciais.
Recursos de desenho arquitetônico:
- Todas as ferramentas que você precisa para criar desenhos detalhados de qualquer coisa
- Bibliotecas de símbolos para download para criação de desenhos mecânicos
- Integra-se com outros programas para criar renderizações 3D
- Recursos avançados de gerenciamento de documentos para escritórios de arquitetura
Comece a criar desenhos arquitetônicos profissionais
Pronto para começar a criar desenhos arquitetônicos para o seu próximo projeto? Faça a escolha inteligente e use o Cedreo.
As suas poderosas ferramentas de design, interface fácil de usar e impressionantes renderizações 3D são exatamente o que você precisa para o seu negócio. Nenhum outro programa economiza tanto tempo e trabalho ao mesmo tempo que ajuda você a conquistar mais clientes.
Com um teste grátis, você não tem nada a perder. Inscreva-se no Cedreo hoje e alavanque o seu desenvolvimento!