Plan 2D
Créez des plans 2D à l’échelle, clairs et précis avec l’ensemble des informations nécessaires.
Le logiciel pour dessiner un plan 2D à l’échelle
Cedreo est un logiciel 100% en ligne, conçu pour les professionnels de la construction et de la rénovation. Il n’y a rien à télécharger sur votre ordinateur, vous pouvez l’utiliser sur PC ou Mac. C’est une solution complète pour créer vos plans en 2D, quel que soit le type de projet : rénovation, construction de maison individuelle, appartement, surface commerciale, extension de maison…
Garantissez la compréhension
Structurez vos plans 2D pour une visualisation claire et immédiate des éléments clés.
Détaillez vos plans efficacement
Profitez de fonctionnalités gain de temps pour obtenir des plans précis.
Améliorez l’organisation de vos dossiers
Retrouvez rapidement tous les plans associés à votre projet pour gagner du temps dans vos présentations.

Visualisez les informations indispensables
- Identifiez les pièces en un coup d’oeil : visualisez facilement la composition des murs et cloisons et le détail des ouvrants. Appliquez des couleurs de fond à certaines pièces pour les identifier rapidement, renommer les et retrouvez leurs surfaces dans le tableau de surfaces.
- Calcul automatique des surfaces annexes : en fonction du type de pièce choisi, certaines surfaces apparaissent en surfaces annexes automatiquement.
- Affichez les cotes et surfaces : des cotes et surfaces sont automatiquement affichées sur le plan 2D. Masquez-les au besoin ou ajoutez-en d’autres.

Complétez vos plans 2D
- Ajoutez des symboles : insérez les symboles manuellement ou affichez automatiquement le symbole associé à un produit 3D. Personnalisez leur couleur et les dimensions.
- Insérez la rose des vents : indiquez l’orientation de la maison et choisissez d’afficher la rose des vents ou non pour chacun des niveaux.
- Annotez vos plans 2D : ajoutez du texte, des lignes ou encore des formes sur le plan 2D pour mettre en avant des éléments clés.

Organisez vos documents et présentez vos plans 2D
- Retrouvez facilement vos plans : les différents plans de niveau sont disponibles dans le dossier de chaque projet.
- Téléchargez vos plans 2D à l’échelle : choisissez le format d’export (PDF ou DXF) et leur résolution.
- Présentez vos plans : ils peuvent être insérés dans un document de présentation (avant-projet, permis de construire, déclaration préalable…) et se mettent à jour automatiquement si le tracé est modifié.
De la conception à l’exécution
Ces fonctionnalités vous permettent de créer un projet complet.
Le tracé des murs et les ouvrants
Dessinez les murs et cloisons, placez vos ouvrants et obtenez la structure de votre bâti.
En savoir plus sur les murs et les ouvrantsTableaux de surfaces
Obtenez automatiquement le tableau des surfaces habitables, utiles, plancher.
En savoir plus sur les tableaux de surfacePlans en 3D
Générez un plan en 3D pour visualiser l’ensemble du projet avec l’aménagement et la décoration.
En savoir plus sur les plans 3DToitures
Créez le toit et les noues automatiquement, insérez les lucarnes, gerbières et choisissez le revêtement.
En savoir plus sur les toitsCoupes et façades
Créez les plans de coupe et de façade automatiquement et ajoutez des annotations et cotes.
En savoir plus sur les plans de coupes et façadesExemples de plans 2D créés avec Cedreo
Découvrez quelques exemples de plans de maison en 2D dessinés avec le logiciel Cedreo. C’est l’outil en ligne avec de nombreuses fonctionnalités gain de temps qui vous permet de dessiner un plan de maison en 2D pour représenter les espaces avec tout le détail nécessaire.

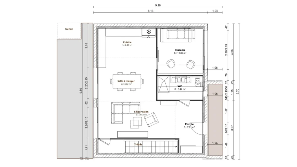
Plan de niveau en 2D
Cette vue simplifiée permet de se concentrer sur la structure de la maison. Il comprend les noms des pièces, les dimensions, les ouvertures, les surfaces au sol des pièces, les murs et leur épaisseur.

Vue des combles en 2D
Le plan 2D d’un étage avec des combles permet d’afficher la ligne signifiant la limite des 1.80m (valeur par défaut) ainsi que la surface habitable et la surface utile et de montrer les combles perdus sous la pente du toit délimités grâce aux cloisons de redressement.

Plan 2D avec la composition des murs
Cette vue présente le plan 2D de la maison. On y fait apparaître le bardage extérieur, la structure du mur et le type d’isolation.

Plan 2D avec les symboles
Ce plan détaillé montre l’emplacement du mobilier principal ainsi que l’emplacement des éléments techniques du projet, tels que les radiateurs, branchements, eau chaude, prises électriques, etc.

Plan 2D avec les ouvrants
Les portes et fenêtres ajoutées sur le projet apparaissent sur le plan 2D, avec leur orientation, la direction d’ouverture, s’il y a des volets battant, roulants motorisés.

Plan 2D d’un local commercial
Le logiciel permet de réaliser des plans 2D de surfaces commerciales pour présenter l’installation des différents éléments, meubles, portes, fenêtres.
Questions Fréquentes
Le plan d’une maison en 2D est une représentation sans perspective qui permet à vos clients de visualiser clairement un projet avec son aménagement, cotations, portes, fenêtres, éléments techniques, ainsi que les surfaces utiles et surfaces habitables. Cedreo fournit toutes les fonctionnalités dont vous avez besoin pour créer des plans 2D simplement et rapidement quel que soit le type de projet: rénovation ou construction neuve de maison individuelle, appartement, surface commerciale, bâtiment, aménagement intérieur ou extérieur, extension, etc.
Avec un logiciel en ligne comme Cedreo, vous pouvez dessiner un plan de maison en 3 étapes :
– Importez un plan existant ou commencez à dessiner depuis une page blanche. Vous commencez à tracer les murs extérieurs, en cliquant pour marquer chaque angle de la structure. Vous pouvez ensuite ajouter les cloisons et murs intérieurs. Il est possible d’ajouter un sous-sol, ou des étages en 1 clic, les murs extérieurs dessinés pour le rez-de-chaussée sont dupliqués pour créer le nouvel étage. Dès qu’une pièce est créée, sa surface au sol apparaît automatiquement. Il est possible d’ajouter le nom de chaque pièce.
– Ajoutez les fenêtres et portes parmi un large catalogue disponible directement dans le logiciel. Il suffit de les sélectionner et de les placer à l’emplacement souhaité en 1 clic.
– Ajoutez les symboles des éléments que vous souhaitez faire apparaître sur le plan 2D: meubles, installation électrique, sanitaires…
Oui — Cedreo est un logiciel complet qui permet de créer des plans 2D en ligne pour des projets de construction ou de rénovation de maisons entières. Il est possible d’ajouter des niveaux supérieurs ou inférieurs en dupliquant un étage, pour assurer une parfaite cohésion dans le projet. Cedreo offre également un module de création de toitures unique qui permet d’ajouter un toit en quelques clics et de le modifier tout aussi simplement.
Oui, grâce à l’Option Chiffrage, vos plans 2D sont prêts à être chiffrés, les données de construction sont automatiquement récupérées. Si vous modifiez le tracé, le plan 2D et le chiffrage sont mis à jour en temps réel.
Le plan 2D d’un étage avec des combles permet d’afficher la ligne signifiant la limite des 1.80m (valeur par défaut) ainsi que la surface habitable et la surface utile et de montrer les combles perdus sous la pente du toit délimités grâce aux cloisons de redressement.
Les symboles sont importants pour apporter une lisibilité et une compréhension immédiate du projet de construction de maison. Plus de 2000 symboles sont disponibles dans Cedreo. Vous pouvez aussi bien préciser l’emplacement du mobilier que les équipements ou encore détailler les aspects techniques (électricité, chauffage, eau,…). Il suffit de sélectionner le symbole et de le placer sur votre plan 2D. Lorsque vous aménagez votre projet en 3D, le symbole associé au produit s’affiche automatiquement sur le plan 2D quand vous cochez la case “afficher le symbole associé en 2D”, gain de temps assuré.
Faire un plan 2D est la première étape du processus de conception d’une maison. Lorsque vous tracez vos plans dans Cedreo, vous pouvez visualiser votre projet en 3D instantanément, dans la fenêtre de visualisation à droite de l’écran de tracé.
Améliorez l’aménagement de votre projet de maison en 3D en intégrant les éléments de la bibliothèque de matériaux, meubles et objets de décoration. Votre proposition de projet sera complète avec des plans 3D et des rendus 3D photoréalistes.
C’est facile à utiliser.
Mais vous pouvez toujours compter sur le support Cedreo.
Pour une prise en main encore plus rapide.
Parce que vous pouvez toujours aller plus loin et gagner du temps.
“Le plus de Cedreo, c’est qu’une fois le dessin finalisé, tout s’enchaîne naturellement : plan de masse, coupes, plans de façades, etc…”