Convert a 2D Floor Plan to 3D Model
Create detailed professional 2D floor plans and watch them simultaneously appear as 3D models.
How To Convert 2D Floor Plans to 3D With Cedreo
2D floor plans are the backbone of any professional construction or renovation project. But when it comes time to present the project ideas to your client, 2D plans alone can leave clients with more questions than answers. That’s why smart contractors use design software like Cedreo to convert floor plans to 3D floor plans.
Here’s how to do it.
Import or Draw 2D Plans
Start with an accurate 2D layout, since this affects every step that follows.
- Import a PDF, PNG, DWG, or DXF as an underlay and set the scale from a known measurement.
- Trace exterior and interior walls with the wall tool, and snap corners to keep lines clean.
- Place doors, windows, and stairs from the library, then adjust sizes to get exact dimensions and positions.
- Check the real-time 3D drawing window to see the 3D model take shape as you draw in 2D

Add 3D Furnishings & Materials
An empty room isn’t very inspiring. But show your clients a 3D view of a fully furnished room and watch how they get excited about the project.
- Drag and drop furniture, fixtures, and decor from the extensive 3D design library.
- Apply materials to floors, walls, and surfaces to match the selected finishes.
- Rotate, resize, and customize objects using the properties panel.
- Add exterior elements like patios or decks.

Generate 3D Views
Turn your floor plan design into clear 3D visuals you can share in proposals and presentations.
- Switch to 3D top view or isometric view to review the full layout from multiple angles.
- Set sun orientation and time-of-day lighting for accurate shadows and natural lighting effects.
- Save camera angles to get consistent images you can reuse across client updates.
- Download the 3D views and renderings as images for easy sharing.

From 2D Floor Plans…
You need to be able to quickly draw an accurate 2D floor plan to lock in the layout, so you can get to a 3D model without spending days grinding through the basics.
- Exact dimensions: Automatic dimensions and room area calculations update as you draw, so you always have up-to-date figures without tons of manual math.
- Clear room layouts: Room labels, notes, and clean symbols keep the plan readable for clients, trades, and internal handoffs.
- Faster edits: Adjust walls and openings or even the entire layout in seconds without redrawing the entire thing.
- Download and print: Produce clean, to-scale PDFs or DXFs and images that work for jobsite binders and client reviews.

To 3D Floor Plans…
2D floor plans provide a general idea of the project layout. 3D floor plans remove the guesswork and bring the plans to life so your clients can visualize the end product. This translates to higher conversion rates for builders, remodelers, and designers like you.
- Instant clarity, fewer errors: Seeing room volumes in 3D makes scale obvious and flags tight passages, bad door swings, and awkward traffic paths early.
- Better decisions: Use the 3D view to sanity-check how rooms connect, how ceiling heights and openings read, and how the plan feels in motion.
- Fast design variations: Swap finishes, adjust materials, or move furniture around on the fly to compare options before anyone starts building.
- More confidence: A clear 3D floor plan builds buy-in earlier, which helps projects move forward with fewer late surprises.

And Photorealistic 3D Renderings
3D photorealistic renderings that let clients visualize the property help you avoid miscommunications and answer a lot of your client’s questions. This helps you close more deals since clients feel more confident about moving ahead with the project.
- Design detail: Showcase the decisions that sell the project, including cabinetry, tile, trim, flooring, and exterior materials.
- Lighting control: Adjust sun orientation, time of day, and exposure so materials and colors look consistent across rooms and elevations.
- Sales-ready visuals you can share: Use photo-like images in proposals, design reviews, and client presentations, then drop them into emails and approval decks to keep everyone aligned.
- Auto-updating presentations: Insert 2D and 3D plans into Cedreo presentation documents, and they automatically update in the document whenever the design changes.

Top Features of This 2D to 3D House Plan Converter
Cedreo is jam-packed with features to easily create detailed 2D plans and convert to 3D.
Instant 2D Plan to 3D Converter
As you create your 2D plans, you simultaneously see the 3D floor plans in the 3D visualization window.
Switch from 2D to 3D In 1 Click
Jump between 2D floor plans and full-screen 3D views in a single click so you can seamlessly adjust layouts and add 3D objects.
Compare Layouts Fast
Test different room layouts, openings, and furniture setups in minutes, so you can go from idea to approved design faster.
Download Plans & 3D Visuals
Export 2D plans, 3D floor plan views, and renderings in common formats like PDF and images, and print 2D plans to scale when you need hard copies.
World Class Support
Stop relying on generic contact forms and user forums. Call, chat, or email a dedicated success manager for fast help.
Intuitive & Easy-to-Learn
Skip the steep learning curve with simple, intuitive controls built for contractors, remodelers, and interior designers who need results fast.
Examples of Floor Plan to 3D Model Conversions Done With Cedreo
Stop guessing how the final project will look thanks to Cedreo’s lifelike 3D images. Check out some real examples of 2D to 3D floor plan conversions done with Cedreo. Then start using Cedreo today so you can create 3D plans like these that will help you close more deals.
Below are 3 projects created with Cedreo, showcasing the design process from 2D floor plans to 3D conversion as well as a final rendering.

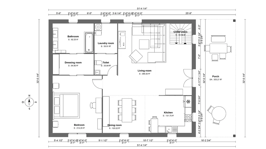
2D floor plan

3D floor plan

3D rendering

2D floor plan

3D floor plan

3D rendering

2D floor plan

3D floor plan

3D rendering
It’s easy to use.
But you can always count on Cedreo support.
For an even faster start, access tutorials and help articles.
Get tips to do more, faster.
“Finally! A 3D home designer I can actually work and use!”
Cedreo is so easy to view in 3D, navigate around in the space, and to create a house in hours, not weeks.
Converting 2D Floor Plans to 3D FAQs
Converting 2D floor plans to 3D is simple with Cedreo, but here are some answers to frequently asked questions about converting floor plans.
With Cedreo your 3D floor plan comes to life simultaneously as you draw in 2D.
No, Cedreo includes everything you need in one software interface.
You can draw 2D floor plans, design and furnish 3D floor plans, and generate 3D renderings all in one place.
Other programs require additional plugins.
To convert a 2D floor plan to 3D, use specialized software like Cedreo that automatically generates 3D models from your 2D layouts.
Simply import or draw your 2D floor plan, and the software instantly visualizes it in 3D.
You can modify the design, add doors and windows, apply materials and furnishing, then generate a professionally rendered 3D floor plan.
No, Cedreo is user-friendly design software for beginners and professionals, and you can create your own floor plan without CAD training.
Upload a PNG or JPEG image, or a PDF, DWG, or DXF file as a template and trace it to build your own floor plan.
The 2D to 3D house plan converter creates a 3D model automatically so you can view and download 3D plans to share with users in the office or on site.
Your 2D floor plan becomes a 3D model with walls, floor surfaces, and openings, and then you can add furniture, kitchen cabinets, and other design elements.
This helps you visualize the space and interior design style before decisions are final.
Yes, once the house plan is drawn, you can create photorealistic renderings that show interior design choices and exterior style.
The 3D model updates automatically from your 2D floor plan as you work.
But you still have the freedom to adjust details and advanced features like materials to match the design.
Yes, edit in 2D or 3D and the model updates right away.
This makes Cedreo the software to quickly explore design options and furniture placement.
Yes. Cedreo is a cloud-based tool, so you can access the software from a web browser without needing to install software.
Draw house plans from scratch or a template and the software automatically creates a 3D model you can export as 3D floor plans or a photorealistic image.